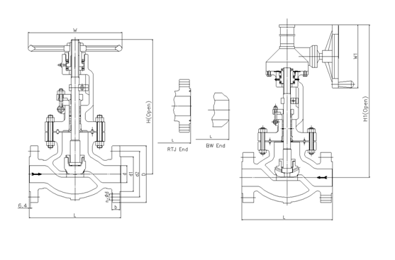
Размеры от торца к торцу: ANSI B16.10
Размеры торца фланца: ANSI B16.5
Размеры стыковой сварки: ANSI B16.25
Проектирование и производство: BS1873
Испытание давлением: API598
Материалы: CN7M, Monel, сплавы 20#, 4A, 5A, C95800, C95500 и т. д.
Применение
Размеры от торца к торцу: ANSI B16.10
Размеры фланцевого конца: ANSI B16.5
Размеры стыковой сварки: ANSI B16.25
Проектирование и производство: BS1873
Испытание давлением: API598
Материалы: CN7M, Monel, сплавы 20#, 4A, 5A, C95800, C95500 и т. д.
| NPS | in | 2 | 2 1/2 | 3 | 4 | 5 | 6 | 8 | 10 | 12 |
| d | mm | 51 | 64 | 76 | 102 | 127 | 152 | 203 | 254 | 305 |
| L(RF) | mm | 203 | 216 | 241 | 292 | 356 | 406 | 495 | 622 | 698 |
| L(BW) | mm | 203 | 216 | 241 | 292 | 356 | 406 | 495 | 622 | 698 |
| L(RTJ) | mm | 216 | 229 | 254 | 305 | 369 | 419 | 508 | 635 | 711 |
| d1 | mm | 92 | 105 | 127 | 157 | 186 | 216 | 270 | 324 | 381 |
| d2 | mm | 120.5 | 139.5 | 152.5 | 190.5 | 216 | 241.5 | 298.5 | 362 | 432 |
| D | mm | 152 | 178 | 190 | 229 | 254 | 279 | 343 | 406 | 483 |
| b | mm | 16 | 18 | 19 | 24 | 24 | 26 | 29 | 31 | 32 |
| n-Фd | mm | 4-19 | 4-19 | 4-19 | 8-19 | 8-22 | 8-22 | 8-22 | 12-25 | 12-25 |
| H | mm | 330 | 360 | 390 | 445 | 480 | 520 | 600 | 773 | 880 |
| H1 | mm | 556 | 658 | 805 | 955 | |||||
| W | mm | 200 | 200 | 250 | 300 | 350 | 350 | 500 | 500 | 550 |
| W1 | mm | 310 | 310 | 460 | 460 |
| NPS | in | 2 | 2 1/2 | 3 | 4 | 5 | 6 | 8 | 10 | 12 |
| d | mm | 51 | 64 | 76 | 102 | 127 | 152 | 203 | 254 | 305 |
| L(RF) | mm | 267 | 292 | 318 | 356 | 400 | 444 | 559 | 622 | 711 |
| L(BW) | mm | 267 | 292 | 318 | 356 | 400 | 444 | 559 | 622 | 711 |
| L(RTJ) | mm | 283 | 308 | 333 | 371 | 416 | 460 | 575 | 638 | 727 |
| d1 | mm | 92 | 105 | 127 | 157 | 186 | 216 | 270 | 324 | 381 |
| d2 | mm | 127 | 149 | 168.5 | 200 | 235 | 270 | 330 | 387.5 | 451 |
| D | mm | 165 | 190 | 210 | 254 | 279 | 318 | 381 | 445 | 521 |
| b | mm | 23 | 26 | 29 | 32 | 35 | 37 | 42 | 48 | 51 |
| n-Фd | mm | 8-19 | 8-22 | 8-22 | 8-22 | 8-22 | 12-22 | 12-25 | 16-29 | 16-32 |
| H | mm | 385 | 420 | 440 | 515 | 580 | 660 | 900 | 950 | 1030 |
| H1 | mm | 690 | 950 | 990 | 1080 | |||||
| W | mm | 250 | 250 | 300 | 350 | 450 | 500 | 500 | 550 | 550 |
| W1 | mm | 310 | 460 | 460 | 460 |
| NPS | in | 2 | 2 1/2 | 3 | 4 | 5 | 6 | 8 | 10 | 12 |
| d | mm | 51 | 64 | 76 | 102 | 127 | 152 | 200 | 248 | 298 |
| L(RF) | mm | 292 | 330 | 356 | 432 | 508 | 559 | 660 | 787 | 838 |
| L(BW) | mm | 292 | 330 | 356 | 432 | 508 | 559 | 660 | 787 | 838 |
| L(RTJ) | mm | 295 | 333 | 359 | 435 | 511 | 562 | 664 | 791 | 841 |
| d1 | mm | 92 | 105 | 127 | 157 | 186 | 216 | 270 | 324 | 381 |
| d2 | mm | 127 | 149 | 168.5 | 216 | 267 | 292 | 349 | 432 | 489 |
| D | mm | 165 | 190 | 210 | 273 | 330 | 356 | 419 | 508 | 559 |
| b | mm | 26 | 29 | 32 | 38 | 45 | 48 | 56 | 64 | 67 |
| n-Фd | mm | 8-19 | 8-22 | 8-22 | 8-25 | 8-29 | 12-29 | 12-32 | 16-35 | 20-35 |
| H | mm | 360 | 410 | 465 | 545 | 625 | 785 | 930 | ||
| H1 | mm | 575 | 660 | 820 | 960 | 1040 | 1280 | |||
| W | mm | 250 | 300 | 350 | 400 | 500 | 550 | 650 | ||
| W1 | mm | 310 | 310 | 460 | 460 | 610 | 610 |
| NPS | in | 2 | 2 1/2 | 3 | 4 | 5 | 6 | 8 | 10 |
| d | mm | 47 | 57 | 73 | 98 | 121 | 146 | 190 | 234 |
| L(RF) | mm | 368 | 419 | 381 | 457 | 559 | 610 | 737 | 838 |
| L(BW) | mm | 368 | 419 | 381 | 457 | 559 | 610 | 737 | 838 |
| L(RTJ) | mm | 371 | 422 | 384 | 460 | 562 | 613 | 740 | 841 |
| d1 | mm | 92 | 105 | 127 | 157 | 186 | 216 | 270 | 324 |
| d2 | mm | 165 | 190.5 | 190.5 | 235 | 279.4 | 317.5 | 393.7 | 469.9 |
| D | mm | 216 | 244 | 241 | 292 | 349 | 381 | 470 | 545 |
| b | mm | 38.5 | 41.5 | 38.5 | 44.5 | 51 | 56 | 64 | 70 |
| n-Фd | mm | 8-26 | 8-29 | 8-26 | 8-32 | 8-35 | 12-32 | 12-39 | 16-39 |
| H | mm | 480 | 520 | 564 | 685 | 780 | 950 | ||
| H1 | mm | 630 | 720 | 840 | 1015 | 1100 | 1185 | ||
| W | mm | 350 | 350 | 400 | 450 | 550 | 650 | ||
| W1 | mm | 310 | 310 | 460 | 460 | 610 | 610 |
| NPS | in | 2 | 2 1/2 | 3 | 4 | 5 | 6 | 8 |
| d | mm | 47 | 57 | 70 | 92 | 111 | 136 | 178 |
| L(RF) | mm | 368 | 419 | 470 | 546 | 673 | 705 | 832 |
| L(BW) | mm | 368 | 419 | 470 | 546 | 673 | 705 | 832 |
| L(RTJ) | mm | 371 | 422 | 473 | 549 | 676 | 711 | 841 |
| d1 | mm | 92 | 105 | 127 | 157 | 186 | 216 | 270 |
| d2 | mm | 165 | 190.5 | 203.2 | 241.3 | 292.1 | 317.5 | 393.7 |
| D | mm | 216 | 244 | 267 | 311 | 375 | 394 | 483 |
| b | mm | 38.5 | 41.5 | 48 | 54 | 73.5 | 83 | 92.9 |
| n-Фd | mm | 8-26 | 8-29 | 8-32 | 8-35 | 8-42 | 12-39 | 12-45 |
| H | mm | 592 | 660 | 692 | ||||
| H1 | mm | 907 | 950 | 1015 | 1145 | |||
| W | mm | 350 | 400 | 500 | ||||
| W1 | mm | 460 | 610 | 610 | 610 |
|
No of internal parts |
Seat ring or body |
Gate、disc 、ball or body |
Stem |
No of internal parts |
Seat ring or body |
Gate、disc 、ball or body |
Stem |
|
| 01 | 13Cr | 13Cr | 13Cr | 31 | STELLITE | 321SS | 321SS | |
| 02 | 304SS | 304SS | 304SS | 32 | STELLITE | STELLITE | 321SS | |
| 03 | 310SS | 310SS | 310SS | 33 | 347SS | 347SS | 347SS | |
| 04 | HARD 13Cr | HARD 13Cr | 13Cr | 34 | STELLITE | 347SS | 347SS | |
| 05 | STELLITE | STELLITE | 13Cr | 35 | NICKEL ALLOY | 13Cr | 13Cr | |
| 06 | Cu-Ni | 13Cr | 13Cr | 36 | A105/PTFE | A105+ENP | A105+ENP | |
| 07 | 13Cr | HARD 13Cr | 13Cr | 37 | A105/PTFE | WCB+ENP | A105+ENP | |
| 08 | STELLITE | 13Cr | 13Cr | 38 | 13Cr/PTFE | 13Cr | 13Cr | |
| 09 | Cu-Ni | Cu-Ni | Cu-Ni | 39 | 304SS/PTFE | 304SS | 304SS | |
| 10 | 316SS | 316SS | 316SS | 40 | 316SS/PTFE | 316SS | 316SS | |
| 11 | Cu-Ni | STELLITE | Cu-Ni | 41 | A105/RPTFE | A105+ENP | A105+ENP | |
| 12 | STELLITE | 316SS | 316SS | 42 | A105/RPTFE | WCB+ENP | A105+ENP | |
| 13 | ALLOY 20 | ALLOY 20 | ALLOY 20 | 43 | 13Cr/RPTFE | 13Cr | 13Cr | |
| 14 | STELLITE | ALLOY 20 | ALLOY 20 | 44 | 304SS/RPTFE | 304SS | 304SS | |
| 15 | STELLITE | STELLITE | 304SS | 45 | 316SS/RPTFE | 316SS | 316SS | |
| 16 | STELLITE | STELLITE | 316SS | 46 | A105/NYLON | A105+ENP | A105+ENP | |
| 17 | STELLITE | STELLITE | 347SS | 47 | A105/NYLON | WCB+ENP | A105+ENP | |
| 18 | STELLITE | STELLITE | ALLOY 20 | 48 | A105/NYLON | 304SS | 304SS | |
| 19 | MONEL | MONEL | MONEL | 49 | A105/NYLON | 316SS | 316SS | |
| 20 | BRONZE | BRONZE | 13Cr | 50 | 13Cr/NYLON | 13Cr | 13Cr | |
| 21 | HASTELLOY B | HASTELLOY B | HASTELLOY B | 51 | 304SS/NYLON | 304SS | 304SS | |
| 22 | HASTELLOY C | HASTELLOY C | 52 | 316SS/NYLON | 316SS | 316SS | ||
| 23 | STELLITE | 304SS | 304SS | 53 | A105/PEEK | A105+ENP | A105+ENP | |
| 24 | 304LSS | 304LSS | 304LSS | 54 | A105/PEEK | WCB+ENP | A105+ENP | |
| 25 | STELLITE | 304LSS | 304LSS | 55 | 13Cr/PEEK | 13Cr | 13Cr | |
| 26 | STELLITE | STELLITE | 304LSS | 56 | 304SS/PEEK | 304SS | 304SS | |
| 27 | 316LSS | 316LSS | 316LSS | 57 | 316SS/PEEK | 316SS | 316SS | |
| 28 | STELLITE | 316LSS | 316LSS | |||||
| 29 | STELLITE | STELLITE | 316LSS | |||||
| 30 | 321SS | 321SS | 321SS | |||||